
OUR PROCESS
Onze methode. Een unieke werkwijze die werkt in drie krachtige stappen. Met alle benodigde onderdelen in-house bieden we een compleet pakket voor ontwerp, uitwerking en begeleiding. – van ruwe schetsen tot prachtige realisaties. Van vergunningen tot interieurontwerp, we regelen het allemaal, van begin tot eind.
Method
OUR PROCESS
STEP BY STEP
STATE OF CONCEPT: Een idee is het begin. Je karakter, je ambitie. Onze kracht, ons statement.
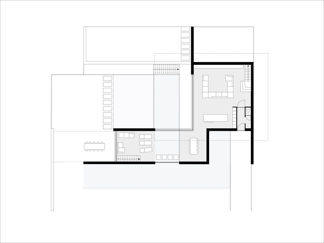
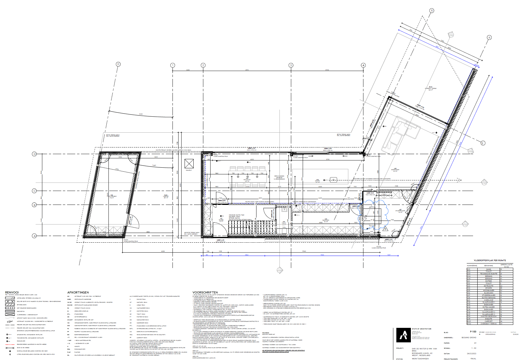
STATE OF DETAIL: We tillen het concept naar een hoger niveau. Niet alleen door te zorgen voor de technische implementatie, maar ook door verder te gaan in het ontwerpproces; het ontwerpen van het interieur, het landschap en de stedelijke context.
TAKING CONTROL: Neem controle over het eindresultaat. Door een zorgvuldige aanpak en aandacht voor detail wordt de gewenste kwaliteit bereikt.


OUR FOUNDATION FOR DESIGN
STATE OF
CONCEPT
STATE OFCONCEPT







CONCEPT TO THE NEXT LEVEL
STATE OF
DETAIL
STATE OFDETAIL

Details matter
Taking
control
Taking control
Where Dreams
Take Shape
In deze fase zullen wij de uitvoerende partijen esthetisch begeleiden, controleren en indien nodig corrigeren. Samen met de aannemer wordt er nagedacht over details, materialen en een slim uitvoeringsplan om de gevraagde esthetische kwaliteit te kunnen realiseren. Onze focus in deze fase ligt dus bij het realiseren van de beoogde esthetische kwaliteit.

READY TO BE CHALLENGED?
CONNECT
Start met het vieren van je succes.
Start met een kennismakingsgesprek met STATE
Let’s connect. hello@stateofarchitecture.com














