
MARBLE
house
MARBLEhouse
Project informationPERIOD
2021TYPE
RESIDENTIAL, VILLALOCATION
GRONINGEN- NETHERLANDSSIZE
1.000m2STATUS
IN PROGRESS
Marble House is a design of connection. Intertwining minimalist lines connect different sections of the house and connect the building to its surroundings. The main volume, consisting of two stories, is located towards the street and offers views of the street and the river flowing behind the plot. Minimalist lines contour the second volume and float over the 100-meter-long plot. Attached to the main volume and stretched out to the river, it connects the house and the river in a clear statement.
Intertwining lines connect spaces
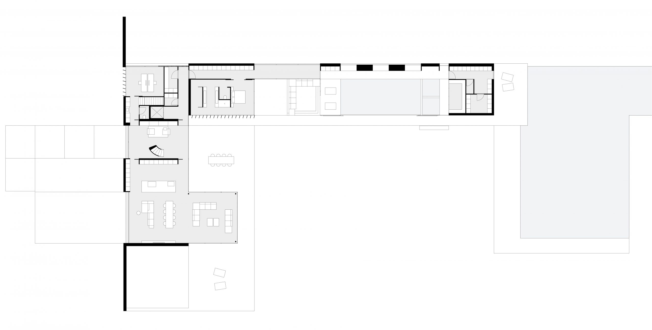
Interior and exterior spaces flow seamlessly together using a hybrid exterior corridor. This connects the main functions of the house with the secondary functions, such as the courtyard garden, sitting pit, indoor pool, and boathouse.

GROUND FLOOR
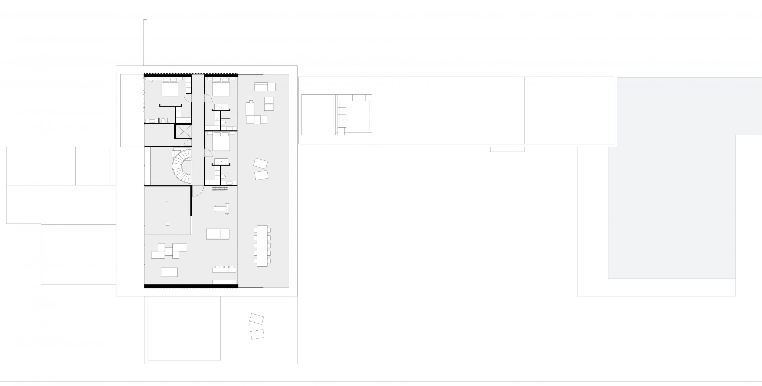
Download brochureFIRST FLOOR
BASEMENT LEVEL
Download brochureSITUATION
Used materials
Providingtexture
The building is called Marble House for a reason. Using black Italian marble, façades are emphasized and gain a luxurious feel. The marble surfaces are interspersed with ceiling-high windows which offer spectacular views of the surroundings. The interplay of horizontal lines creates a tension between the surfaces and emphasize the length of the plot. These lines are finished with concrete, a raw and neutral material. Additionally, LED lines have been incorporated to highlight the extravagant architecture.

Marble

aluminum

Concrete

Lines
INTEGRATING ARCHITECTURE
AND LANDSCAPING
OF THE LAND
The floating secondary volume extends all the way to the river, integrating a dock in the architecture. After a relaxing boat-trip, the client immediately steps into their house. Convenience, luxury, and architecture come together in this unique ‘’back door’’.

Outspoken and
luxurious intorior
Combining an open floor plan and various sitting areas creates an interwoven interior. An example is the integrated library in the central hallway, or the formal and informal living room adjacent to the kitchen.
The interior contains a recognizable red accent colour, which comes back in various parts of the interior, such as the sofa, chairs, and art pieces.







Get in touch
with us
We love to collaborate with
ambitious clients. Let’s connect
sayhello@stateofarchitecture.com
















