
Terrace
estate 12
Terraceestate 12
Project informationPERIOD
2017-2020TYPE
RESIDENTIAL, VILLALOCATION
SPANISH WATER - CURACAOSIZE
1200m2STATUS
COMPLETED
Terrace estate 12 is located in one of the most beautiful areas Curaçao has
to offer. Right beneath the Tafelberg, it has stunning views in all directions.
This was also the client’s most important requirement; to use the unique
location to its fullest effect.
By orienting certain functions in a particular way, every function receives a unique view. Not only distant but also close-up scenes get special attention. Rooms requiring more privacy are situated toward the mountain, but they don’t have a less unique view because of this. The direct surroundings can be viewed on a smaller scale; one can imagine seeing a salamander scurry amidst the cacti.






BRINGING THE
MOUNTAIN INWARDS
By orienting certain functions in a particular way, every function receives a unique view. Not only distant but also close-up scenes get special attention. Rooms requiring more privacy are situated toward the mountain, but they don’t have a less unique view because of this. The direct surroundings can be viewed on a smaller scale; one can imagine seeing a salamander scurry amidst the cacti.

Key information
Project team
Bruce Verdonschot
Yvonne Willems
Joris van Eekelen
Collaborations
Eye for detail
The wooden strip ceiling was carefully thought out, every plank individually drawn, measured, cut and placed in its designated spot. This attention to detail can be seen throughout the design, both in detailing and execution.

Used materials
Only theessential
Nature is not only reflected in the overall architecture of Terrace Estate, but also through materialisation. Using local natural rocks that come from the exact building site in the bathroom and study room, the context’s history is always present in the building.
The wood strip ceiling reflects nature in its texture and colour, giving warmth and depth to the main space. With white stucco, the expressive architectural lines juxtapose these natural materials in order to make an architectural statement. Yet, in this statement, the horizontality and sharp nature of the Tafelberg are reflected. An architect’s interpretation of the natural surroundings.





rocks
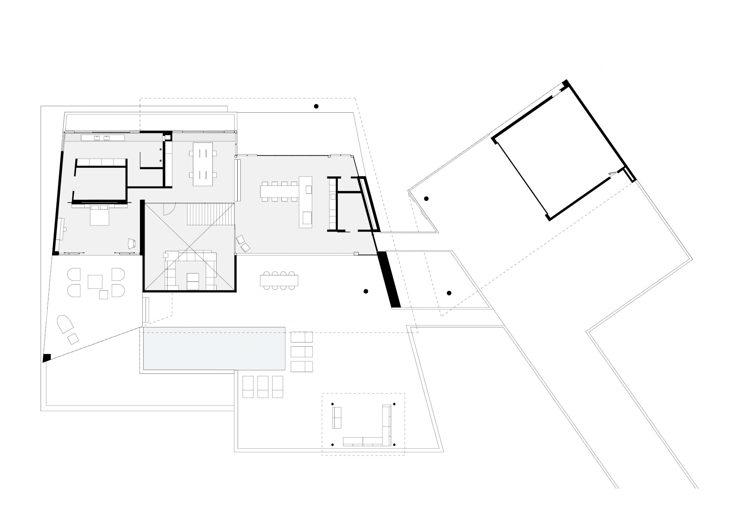
GROUND FLOOR 0
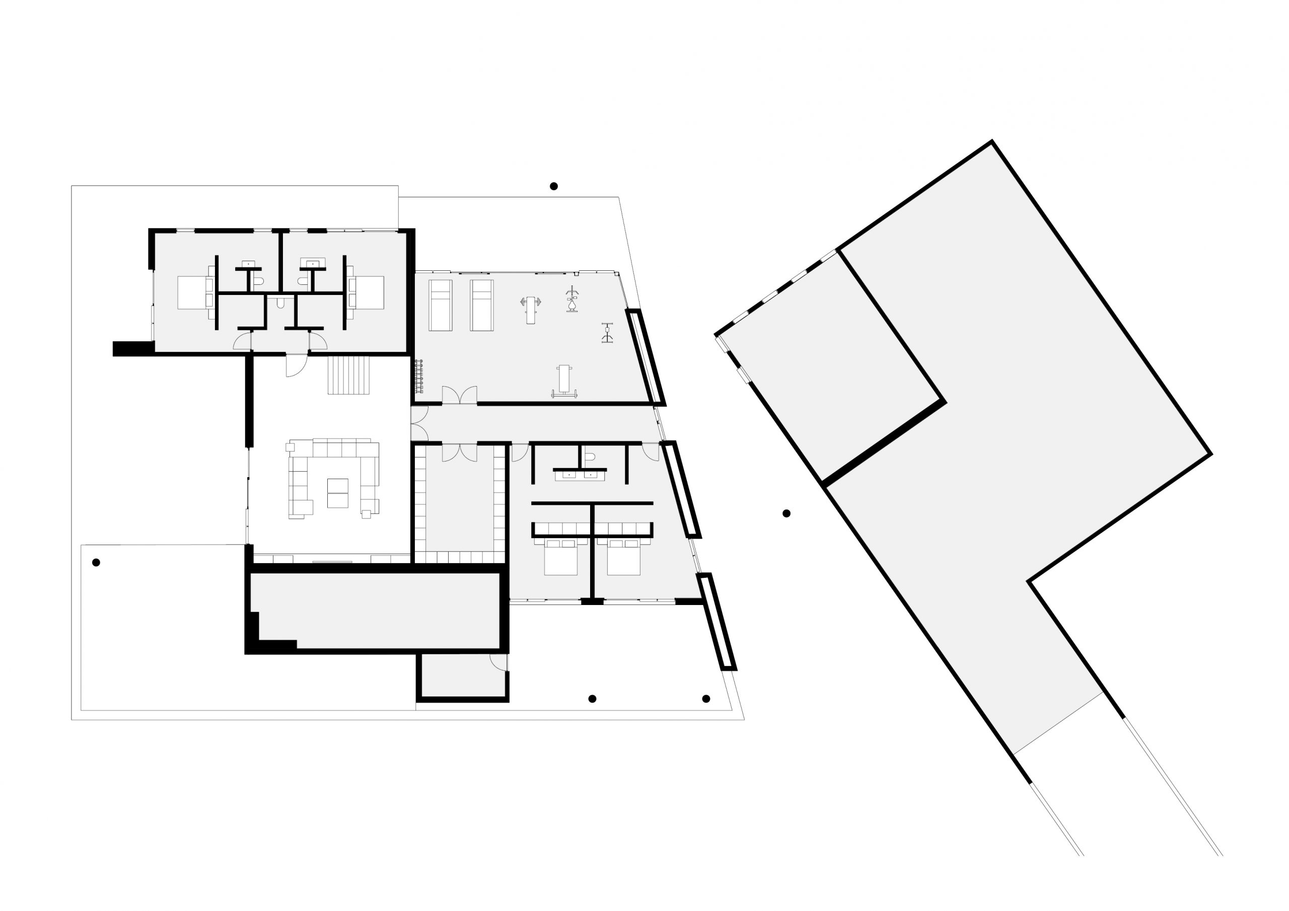
Download brochureBASEMENT LEVEL -1
Download brochureTOP VIEW
Download brochureINSPIRED BY
SURROUNDINGS
Through deliberate architecture, certain views are emphasised. The white lines frame the surroundings and direct particular attention to the location’s most fascinating scenes. The mountainous terrain is also reflected by these expressive horizontal lines jutting outwards, imitating the sharp and horizontal nature of the Tafelberg. In this way, the design creates a strong connection with nature while creating a statement toward the lake.

Ready to celebrate
your succes?
Ready to celebrateyour succes?
We love to collaborate with
ambitious clients. Let’s connect
sayhello@stateofarchitecture.com













