
Vista Royal U10
Vista Royal U10Project informationPERIOD
2018AREA
650 M2LOCATION
Vista Royal - CURAÇAOLORUM IPSUM
2035596
Creating a villa that optimizes the views over the Caribbean sea, without sacrificing privacy from the neighboring villa located directly behind this holiday home was the starting point for this concept. The villa consists of three cubistic shapes, opening up the main living areas and master bedroom to the outside living areas and pool.
One of the main features of this villa are the glass facades connecting seamlessly, making the main volumes seem to float. Below 5 bedrooms with ensuite bathrooms are situated. A private beach volleyball court completes this astonishing villa.






Blending spaces in the interior
Blending spaces in the interiorinformation
The large glass sliding doors connect seamlessly creating a direct connection between the main indoor areas and large outdoor area combined with infinity pool.


Used materials
Volutpatpulvinar risus
The material use for this minimalist villa was quite straight forward; white stucco forms the base material to accentuate the main shapes of the villa, especially on the second floor.
Large minimalistic glass facades are used to open up and connect the main living areas to the large outdoor living area and pool, whilst large light grey floor tiles are used to make sure the indoor and outdoor areas merge perfectly.


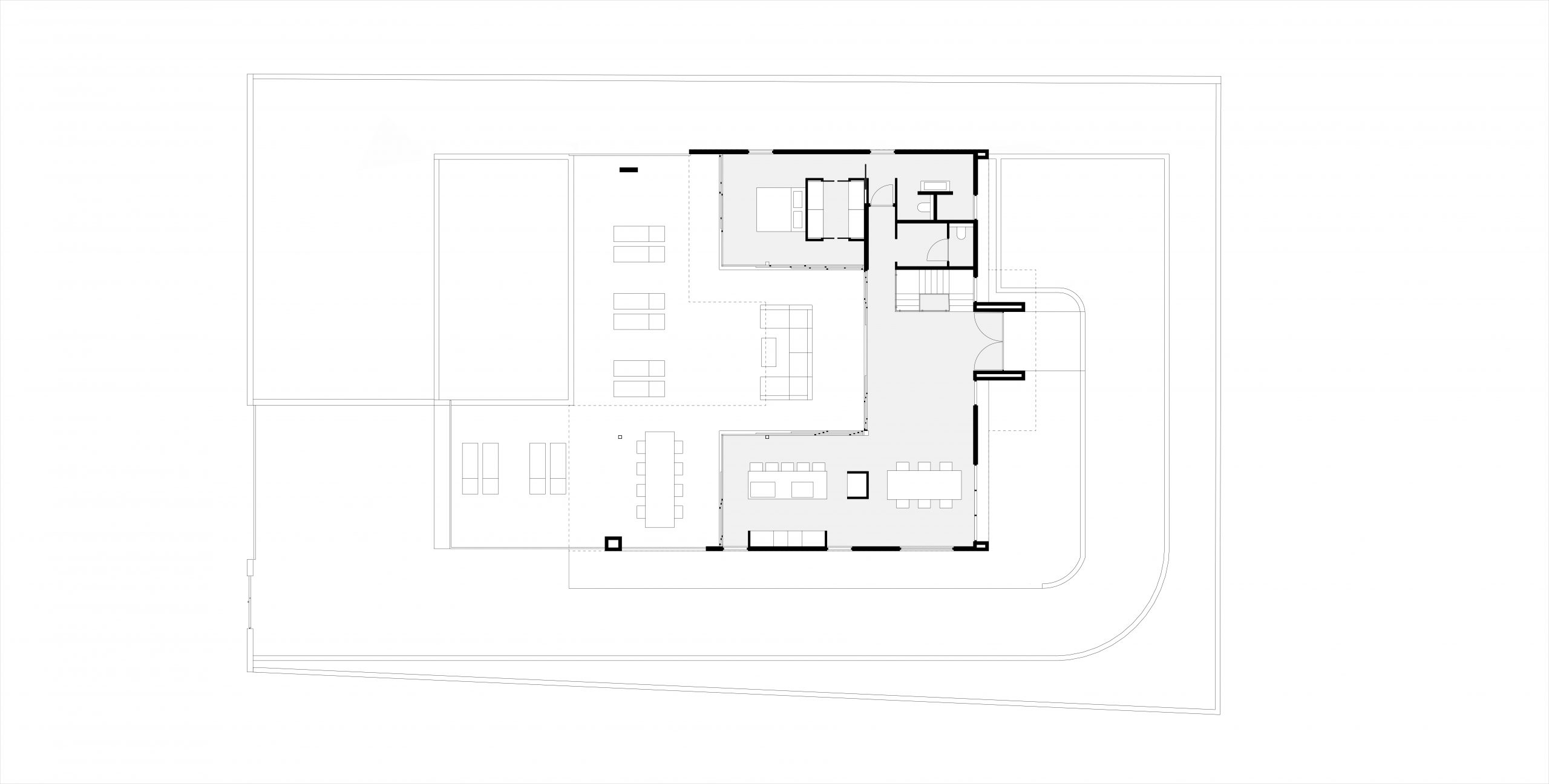
First floor
Download brochureSecond floor
Download brochureTOP VIEW
Get in touch
with us
We love to collaborate with
ambitious clients. Let’s connect
hello@stateofarchitecture.com











